ООО «ЭЗОТ «СИГНАЛ» Контакты:
Адрес: ул. Энгельс 19, 5-й квартал, 1А 413119 Саратов,
Телефон:+7 453 54-41-44, Электронная почта: office@ezotsignal.ru
ЭЗОТ Сигнал
«ЭЗОТ «СИГНАЛ» - российский разработчик и производитель газорегулирующего оборудования

Крупнейший российский разработчик и производитель газорегулирующего оборудования, оборудования для газотранспортных, теплоснабжающих и теплогенерирующих компаний.
Сайт технической и сервисной поддержки партнеров

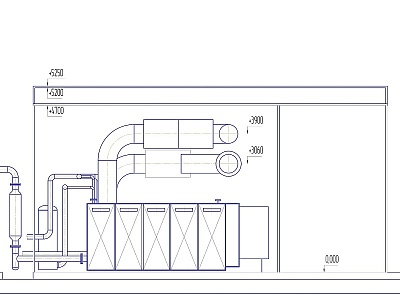
Модульные электростанции (ЭТП, МЭТ)

МЭТ предназначены для электро- и теплоснабжения различных зданий и сооружений. Выполнены на базе энергетических установок с газопоршневым или дизельным двигателем и электрогенератором, в которых происходит утилизация выделяемого тепла. МЭТ состоят из одного или нескольких транспортабельных блок-боксов, собираемых в единую конструкцию на месте эксплуатации.
МЭТ работают на природном газе по ГОСТ 5542, (сжиженном, газе), газовых смесях, попутном газе или на дизельном топливе по ГОСТ 305.
МЭТ устойчивы к воздействию температуры и влажности окружающего воздуха в диапазонах, соответствующих климатическому исполнению УХЛ1 по ГОСТ 15150, для температуры окружающего воздуха от -40 до +50 °С), с относительной влажностью (95±3)% при 35°С.

Задать вопрос

Получите выгодное предложение

ООО "ЭЗОТ "СИГНАЛ" - завод полного цикла

ЭЗОТ «Сигнал» - крупнейший российский разработчик и производитель газорегулирующего оборудования, оборудования для газотранспортных, теплоснабжающих и теплогенерирующих компаний.

100%полное импортозамещение

с 1951 годанепрерывный процесс развития инженерных и производственных компетенций

90+газораспределительных организаций эксплуатируют наше оборудование

7 000 000+единиц газового оборудования суммарно произведено с 1988 года