ООО «ЭЗОТ «СИГНАЛ» Контакты:
Адрес: ул. Энгельс 19, 5-й квартал, 1А 413119 Саратов,
Телефон:+7 453 54-41-44, Электронная почта: office@ezotsignal.ru
ЭЗОТ Сигнал
«ЭЗОТ «СИГНАЛ» - российский разработчик и производитель газорегулирующего оборудования

Крупнейший российский разработчик и производитель газорегулирующего оборудования, оборудования для газотранспортных, теплоснабжающих и теплогенерирующих компаний.
Сайт технической и сервисной поддержки партнеров

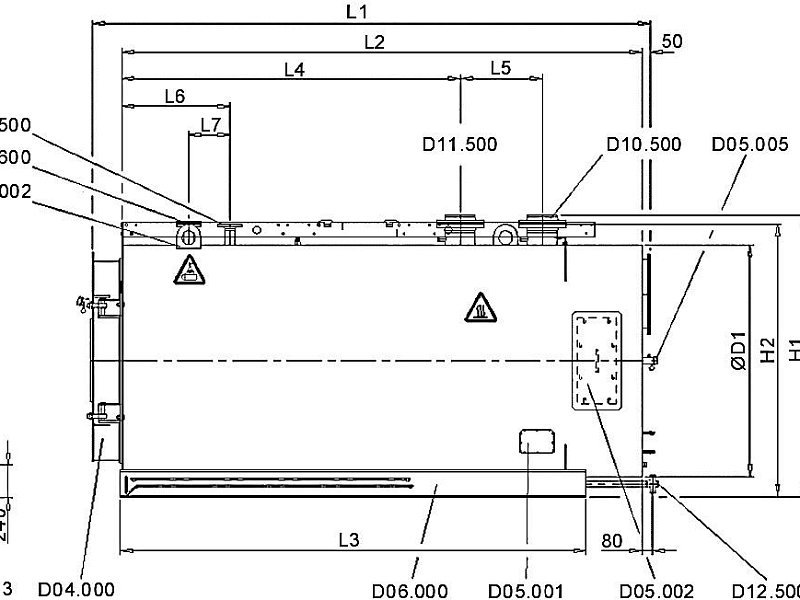
Котлы водогрейные ЭНЕРГОХИТ

Котлы водогрейные типов ЭНЕРГОХИТ   предназначенны для теплоснабжения и горячего водоснабжения объектов производственного, административного, культурно-бытового назначения: школ, жилых домов, больниц, спортивных залов и т.д. имеющих закрытую систему отопления.

Назначенный (расчетный) срок службы изделия – 20 лет.

Задать вопрос

Получите выгодное предложение

ООО "ЭЗОТ "СИГНАЛ" - завод полного цикла

ЭЗОТ «Сигнал» - крупнейший российский разработчик и производитель газорегулирующего оборудования, оборудования для газотранспортных, теплоснабжающих и теплогенерирующих компаний.

100%полное импортозамещение

с 1951 годанепрерывный процесс развития инженерных и производственных компетенций

90+газораспределительных организаций эксплуатируют наше оборудование

7 000 000+единиц газового оборудования суммарно произведено с 1988 года